
柳岸曉風212㎡ | 推窗即江,入目皆景,簡奢質感更是拉滿!
本案以簡奢二象為主題概念,藏奢于簡,簡奢共生。空間以干凈的線條與中性的色調鋪陳基調,融入金屬、石材等輕奢材質,塑造出兼具寧靜感受與藝術氛圍的時尚都市居所。


陽光漫過江面,碎成一片流動的金;光線探入室內,投下家具器皿的倒影。此刻,空間與自然達成默契的共感,一舉一動,已然成為品質生活安靜而確切的表達。

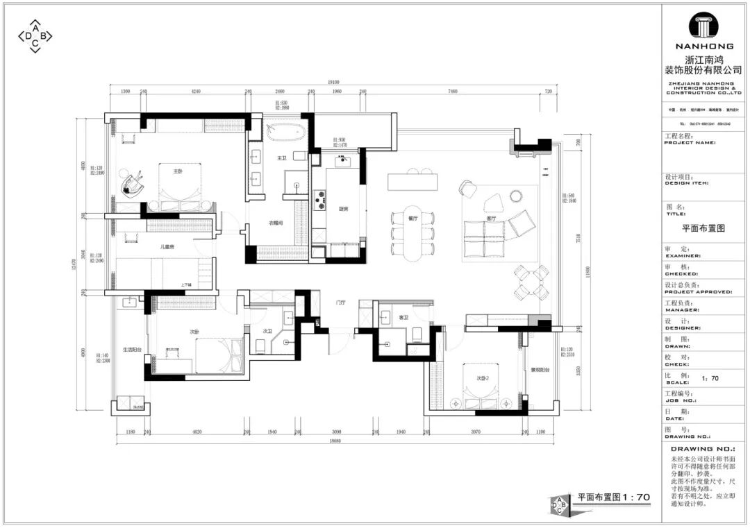
平面方案
▊ CASE APPRECIATION
L.R. 客廳


杏白色基底與窗外江景,共同構筑起這套大平層的視覺基礎。開放式布局讓視野無界延伸,軟裝質感的碰撞營造藝術張力,居室在低調中飽含著豐富的層次。

白色島嶼沙發成為區域中的核心樞紐,可移動式落地電視亦能隨情境轉向,會客時輕盈隱入角落,讓位給更寬闊的視野。
不必刻意去適應布局,而是讓空間靈活響應每個生活場景,這種流動性與自由度,正是來自設計對現代人居本質的深切思考。

窗邊架設休閑桌椅,與水吧臺相鄰而置,想象著:當晨光初現,煮一杯濃香咖啡,倚坐窗邊,靜待美妙新一天的開啟...


光與景,成為空間內無聲卻也是最精彩的語言。夜幕降臨時分,對岸萬家燈火浮動,霓虹與遠山的輪廓,旋即交織出最動人的景色。
D.R. 餐廳


餐廳選配造型優雅的吊燈與餐桌椅,搭配島臺,串聯起流暢的洄游動線。材質與色彩對話,醞釀出高級的情調,為一席席盛筵做好了最充足的準備。

奢闊大理石島臺,內置可調節的發光系統,燈光自由變幻間,天然石紋路隨之流轉,明暗交錯,勾勒出一幕華麗視象。
H.R. 過道

設計繼續循著燈光的軌跡,在空間內植入恰到好處的軟飾點綴,搭建起豐富的立體層次。這不僅是美的呈現,更是一種對都市生活的精準解讀:讓儀式外顯,讓每一次經過,都成為精心編排過的獨特體驗。
M.R. 主臥


主臥的氛圍輕巧中見典雅,床頭擁有曲面的包裹,細膩的織物、明亮的光感,平凡的日子便在這樣的環境中,悄然滋養出柔情與浪漫。

極簡的輪廓釋放松弛、寧靜的感受,輕與重的色彩比例完美協調,均衡地鋪展出向內生長的生活能量。
C.R. 兒童房


兒童房以優雅而不失活力的紫色作為主調,既溫柔又富有想象力。墻面鋪設柔軟繃布,觸感溫潤,防磕碰的同時,增添了一份更加細膩的居住體驗。

這間兒臥則貼合了孩童愛玩耍的天性,以上下床的形式,融合玩樂區與睡眠區,供孩子自由游戲與探索。空間內部有序分布不同功能,為孩子的成長預留好了足夠的彈性。
P.I. 項目信息 項目名稱:柳岸曉風 設計風格:現代極簡 項目類型:大平層 項目地點:中國·杭州 項目面積:212㎡ 項目服務:設計·施工·硬裝·軟裝 全案設計 設計單位:浙江南鴻裝飾 施工單位:浙江南鴻裝飾
免費
免費申請戶型規劃
專屬設計師免費1對1全程服務
已經有3776人申請
24小時免費咨詢電話
400-8800-618
你家預算
108080元