
290㎡現代輕奢 | 細節構筑感知,讓生活與藝術相逢
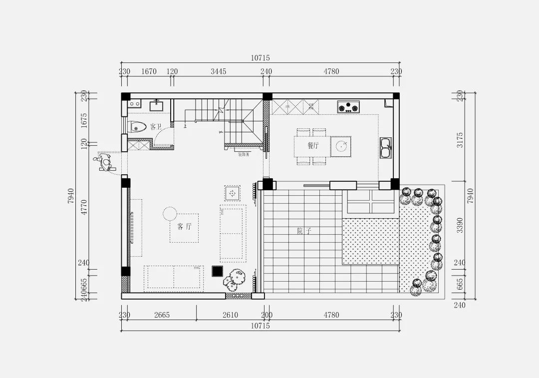
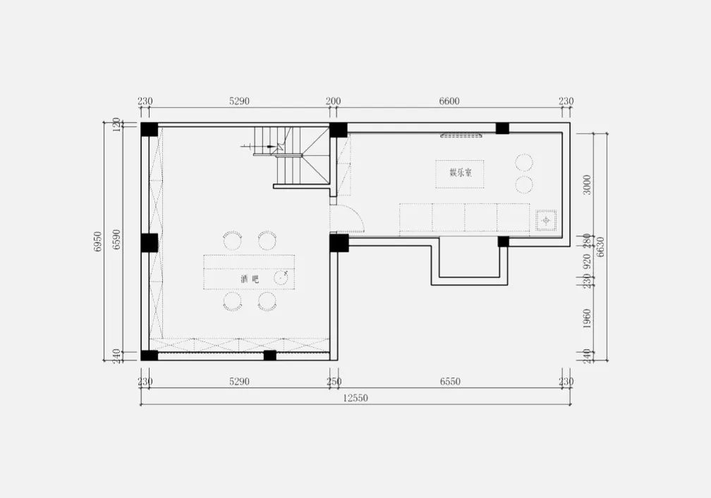
不用一味追求大氣,但是戶型的功能規劃一定要合理,這是業主與我們在前期溝通時提出的第一需求。設計師以業主及其家人的起居生活為基點,重新梳理和規劃了功能區,保證便捷的動線,塑造自由居家領域。 項目從現代輕奢風格出發,使用灰白色系結合,搭配上舒適有質感的軟裝,金屬線條和科技木的細節點綴讓空間更加高級大氣。 室內,木飾面、硬包、暖灰的瓷磚、藝術墻布等多種材質組合,搭配極具設計感的家具,賦予空間良好的節奏與層次,也為業主創造了觸手可及的舒適。 A. 戶型設計 B. 實景呈現 客廳 | Living Room 客廳區域開敞無阻,灰白搭配淺咖色,營造出沉穩大氣的現代質感。整體燈光布置精致而不顯繁復,通過變幻的光影,賦予了客廳更多的解讀視角。 石材和木格柵的疊加,讓電視背景墻形成懸浮的輕盈感,不同材質的體塊形態,將理性思維與人文情感緊密相融。形色光影在空間內交匯,極具質感的軟裝細節輕松打造藝術又優雅的氛圍。 如秋般細膩又清爽的感覺全面喚醒了家的愉悅,從選材、色彩、燈光到局部裝飾,設計都格外重視藝術與生活的有機結合,使得空間無論是遠觀還是近看,都有著令人心動的美感。 餐廚 | Dining Room & Kitchen 一處宜居的房子,在各個區域的功能性上必是富足的。餐廚合為一體,開放式結構讓家人可以保持隨時的互動,也讓烹飪擺脫了枯燥,溫馨的感受被進一步激發。 廚房調配深淺對照的色彩,沉穩又富有張力,U型的結構筑造開放有序的烹飪環境。 樓梯 | Stairs 樓梯不僅是相當實用的功能區,也能在設計師的巧手下,變身為亮麗的風景,為居室增添情調。 華麗的吊燈垂直而下,凌空劃出動感的弧線。木質、金屬、玻璃、燈光等多種元素和諧地糅合在一起,讓家居的品味無限升華。 主臥 | Master Room 主臥功能豐富,氛圍也是愜意閑適的。穩重的暖灰色彩包裹空間,干練的線條分割塊面,展現利落和爽凈。睡眠區與衛浴區使用了半墻隔斷,空間保持通透的視感。 次臥 | Spare Room 次臥的設計舍去了所有不必要的色彩和裝飾,平整絲滑的立面表達極致的簡潔。 兒童房 | Children's Room 兒臥的設計以太空和宇航員為主題,作為孩子童真和夢想的投射。沿墻安放書桌椅和開放式書柜,創造舒適安靜的學習環境。 書房 | Study 書房是一處不設限的自由天地,讀書、發呆、玩耍、午睡都好,既相互依存又彼此獨立,是家庭成員之間最好的相處模式。 衛生間 | Bathroom 衛浴間用深玻分隔馬桶區與淋浴區,各自配備拉門保證隱私,使用起來也更加科學和高效。 水吧臺 | Home Bar 休閑水吧區同樣承載了居者的喜好,配備了酒柜、島臺和餐邊柜等,讓人盡情品味生活的美好。 C. 項目信息 項目名稱:芳滿庭 設計風格:現代輕奢 項目類型:排屋 項目地點:中國·杭州 項目面積:290㎡ 項目服務:設計·施工·硬裝·軟裝 全案設計 設計單位:浙江南鴻裝飾 施工單位:浙江南鴻裝飾






























免費
免費申請戶型規劃
專屬設計師免費1對1全程服務
已經有3776人申請
24小時免費咨詢電話
400-8800-618
你家預算
108080元